Loading...
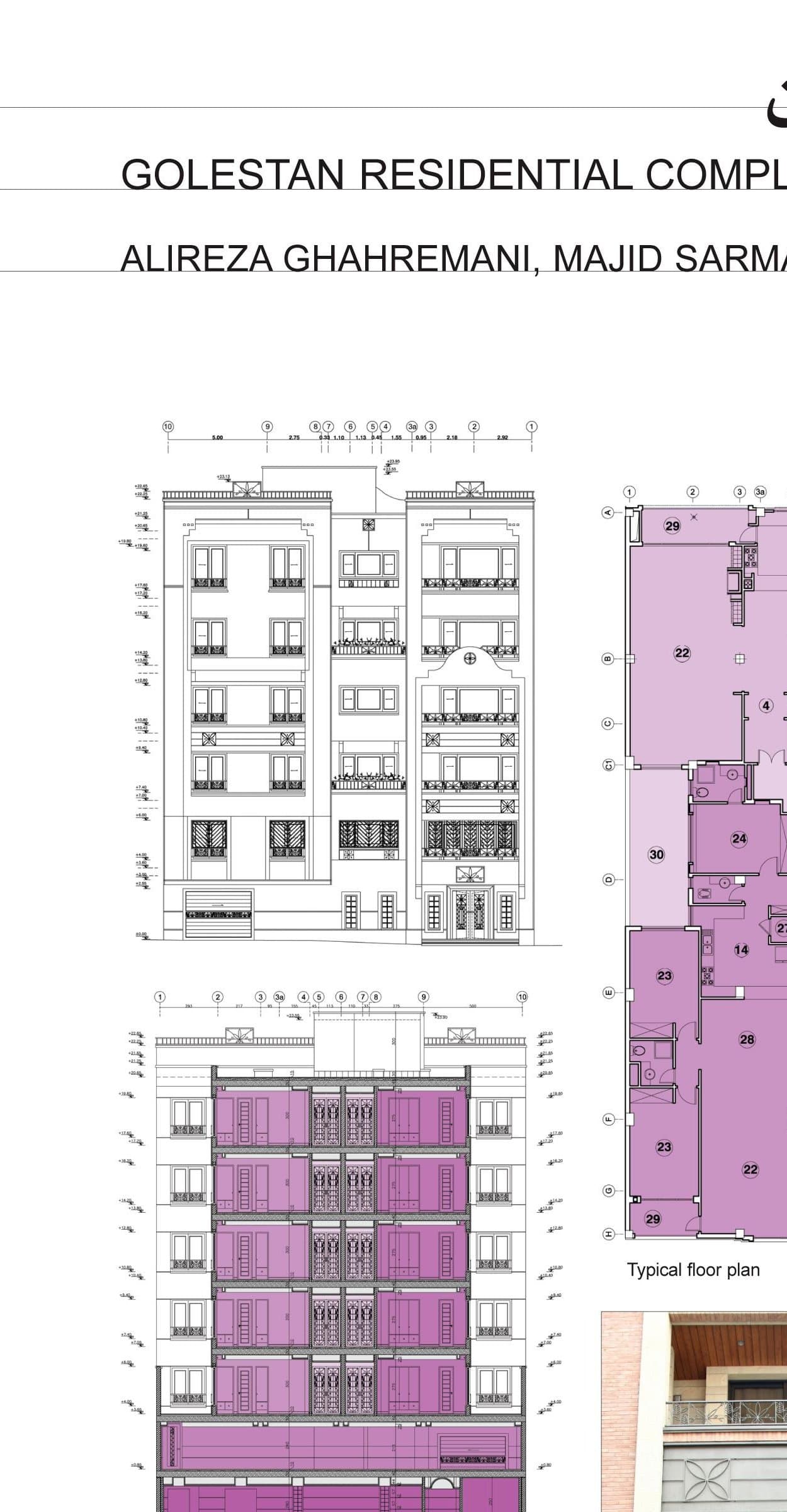
Majid Sarmast is an architect. Notable work includes Golestan Residential Complex.
Local and Vernacular Architecture of Iran, Bushehr — Documentary "In Longing for the Wind"
Hamid Akbari
Finalists of the 25th Memar Award — 1404
Winners of the 25th Memar Award — 1404
Semifinalists — Renovation
The Editor
Semifinalists — Individual Dwellings
Semifinalists — Apartment Buildings
Get the latest architecture news and magazine highlights delivered to your inbox.
Semifinalists — Public Buildings