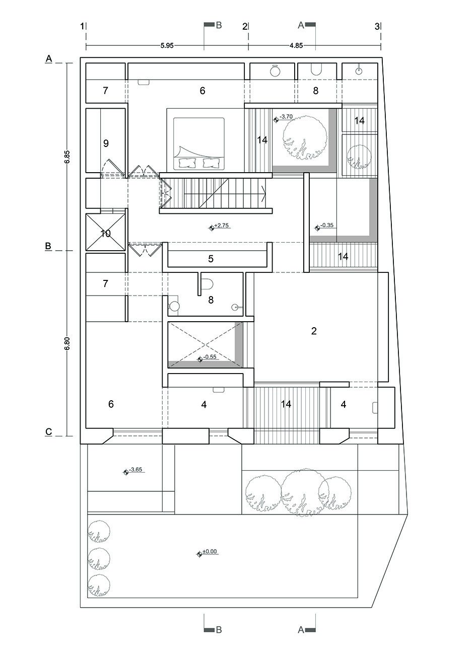
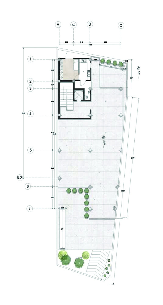
The Sahra Building is situated in the Khaju Square district of Kerman. On one hand, the culture, history, and way of life in this neighborhood, and on the other, the need for open spaces in each unit — aimed at minimizing the sense of enclosure and the feeling of apartment living — heightened the design sensitivity of this building.
To this end, large terraces were envisioned on the southern side of the building, facing the finest view in the area. These terraces, while admitting natural light, also provide an acceptable degree of privacy for the spaces adjoining them.
Furthermore, latticed screens were installed on the outer edge of the terraces so that under varying weather, light, and other conditions, by adjusting the degree to which this skin opens, the light, temperature, and privacy of the terraces can be regulated.
This skin is made of reed, which — besides its visual beauty from both inside and outside the building — serves as a suitable alternative to thermo-wood and similar materials that are incompatible with the region's climate. The facade body is also constructed of locally produced Kerman brick.
Project Details
Location: Piroozi Boulevard, Alley 21, Kerman
Client: Abbas Ebrahimi
Design Team: Mahmood Ebrahimi, Ali Bahmanyar, Gholamali Aghili
Construction: Ali Mohammad Vazirzadeh, Hossein Mehrabi
Supervision: MA Office, Mahmood Ebrahimi, Ali Bahmanyar
Structure: Alireza Esfahani
Electrical: Gholamali Keyvan Ebrahimi
Mechanical: Yousef Vakilzadeh
Graphic Design: Gholamali Aghili
Photography: Mahmood Ebrahimi
Total Built Area: 2,000 m²
Site Area: 475 m²
