Loading...
Loading...
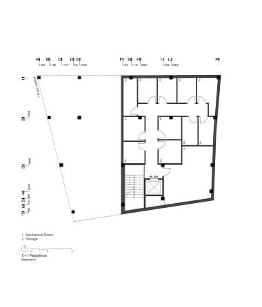
Zahra Armand is a prominent Iranian architect and co-founder of Rooydaad Architects, known for her focus on sustainable urban living and modern reinterpretation of traditional spatial concepts. Her firm's projects, such as the '5+1 Residence', have earned multiple placements in the Memar Awards.
سردبیر