The Bagh Mashhad project came to the studio in 1399 [2020]. On a street leading to the river. The project’s clients were five related partners who wanted five identical units on five floors above the ground level. Creating spatial variety through changing unit typologies across floors was therefore not possible for the designer.
The design intervention focused on a single concentrated change: rearranging the connection of open and semi-open spaces and the hierarchy of access in the conventional apartment typology, with a glance at the history of the house in this geography. The design question was this: how can these limbs be joined so that the forgotten possibilities of the home are revived? Can a role resembling the inner and outer courtyards of the past be bestowed upon today’s balcony?
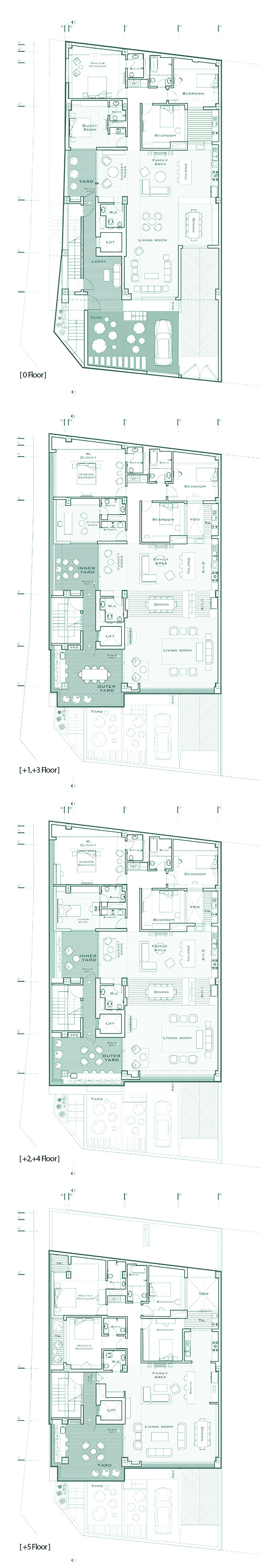
Rethinking the connection between vertical access and the balcony created the possibility of a fresh spatial order — one that re-establishes a spectrum from private to public within the apartment.
The In-Between Realm
One of the possibilities that rethinking connections offers is how to transform the border between a duality into a spectrum-like realm. If we view the threshold between the duality of inside and outside as a mere boundary, no space remains for being in-between. But if this sharp line is transformed into a realm — a threshold — something emerges in the middle that adds new qualities to life.
In this project, the two inner and outer courtyards both play the role of these added intermediate spaces and serve as the backbone for shaping all other spaces of the house, redefining and blurring their boundaries. This geometry is the basis of the overall plan, and all spaces of the home find their place in relation to the skeletal structure of these courtyards. The courtyards are places where outside and inside encounter one another.
The two-courtyard diagram has yielded different possibilities in the spatial order of the entire home — possibilities that can even extend to the major spatial divisions of contemporary life. First, it provides separate access to a space that, while working with the house, can also function independently with the outside: a space that can serve as a guest room, offering new possibilities for cohabitation; or be a home office in a house that alters the spatial division of life in contemporary times — a life that had taken bodily form in the separation of workplace from home, and many contemporary crises, such as the pandemic, reminded us of the necessity of thinking in other forms. Likewise, it can be a supplementary space for the relative independence of the family’s children, who, as a result of the housing crisis, have not yet been able to separate from the family.
The Sunset Nook
Among the architectural possibilities of this diagram is a different use of light and the sunset vista. The western frontage of the plot is the longest, and the placement of the courtyards on the western face means that one need not follow the perennial rule that western light is undesirable. The courtyards are hinges that filter the western light, and the space adjacent to them becomes a cozy nook facing the framed sunset — a space we have named the “sunset nook” in this project.
Interior Spaces
The fracture in form, volume, and structure at the building’s midsection has shaped better interior spaces: units with different configurations — two duplex units, one triplex unit, and three units with a split-level structure. On the southern side, terraces have been designed that, through their elongated depth, both preserve privacy and provide horizontal views toward the southern mountains and Bagh-e Malek Abad to the north.
The terraces, as semi-open spaces, are a response to the growing need of contemporary users for connection with the outdoors, natural ventilation, and a more liveable experience within urban density. The fracture in the building’s form and volume has also brought about an effective separation of public and private spaces. Residents can live in peace in the private section, and only when needed, join guests in the public space.
This design thinks not only of the comfort and privacy of residents, but also of reducing energy consumption, preventing waste in unnecessary spaces. In the building’s facade, attention to the third dimension has created a separating boundary between the duplex, triplex, and other units; this differentiation is expressed three-dimensionally, separating the volume from flat surfaces.








