Contemporary Architecture

Finalists — Apartment Buildings

◆ ◆ ◆
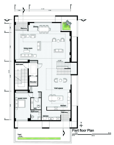
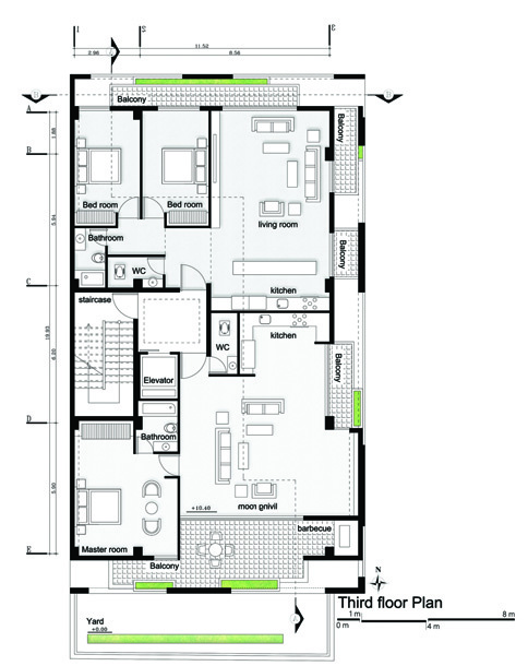
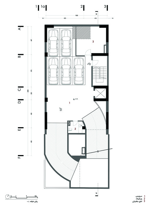
01

Location: Ghasrodasht Street, Shiraz · Built area: 2,700 m² · Site area: 610 m² · Photo: Navid Atrvash

The Memory of Garden Apartment, Shiraz

Ashari Architects — AmirHossein Ashari, Zahra Jafari, Afshin Ashari

Located near Ghasrodasht gardens, the project asks: Can new construction revive some of the damage done to historic gardens? Cuts in the facade skin dynamically change according to tree positions, avoiding monotony and maximizing the physical and visual connection with the neighborhood. Organic forms flow from the facade into the lobby and interior plan. On the courtyard side, all old trees were preserved, creating a space rich with greenery.

02

Location: Azadi Boulevard, Ilam · Built area: 900 m² · Site area: 296 m² · Photo: Parham Taghioff

Hambud Residential Building, Ilam

Mohat Office — Mohammad Hadianpour, Reza Mansouri

Ilam is one of the few cities where most buildings are built with 100% site coverage and high density. The project attempts to allow the building to take shape in the tension between object-oriented and field-oriented architectural discourse. Two skins were created so that semi-open spaces form active and livable roles between them, addressing privacy, visual comfort, and energy reduction through shadow theory and large openings.

03

Location: Velenjak Street, Tehran · Built area: 2,000 m² · Site area: 333 m² · Photo: Mohammad Hassan Ettefagh

Liona Residential Building, Tehran

Boozhgan Architecture Studio — Hamed Badri Ahmadi

Liona is one of the countless 60% projects of Tehran -- buildings that together make the city. Our effort was respectable architecture and quality creation within economic constraints, producing projects that can be replicated. Alternative floor plans and stacking different spatial masses created an intermediate, deep space between building and street, with balconies serving as filters between interior and city.

04

Location: Niavaran Street, Tehran · Built area: 3,075 m² · Site area: 584 m² · Photo: Mohammad Hassan Ettefagh

Sepiz Residential Building, Tehran

Studio Saheb — Amir Reza Saheb

The central theme was connecting private interior living space with the public street. Instead of a rigid two-dimensional wall, the Sepiz building strengthens the idea of an in-between space. Alternative plans for floors and stacking creates a heterogeneous, deep intermediate zone. The living area directly interacts with the main intermediate space through full-length windows, while the southern facade incorporates a recess that eliminates the conventional internal light well.

05

Location: Safaiyeh, Yazd · Built area: 1,272 m² · Site area: 405 m² · Photo: Nazli & Pedram Jafarbeigy

Cedar2 Residential Apartment, Yazd

Sizan Architectural and City Reading Studio — Nazli & Pedram Jafarbeigy

With an intergenerational living approach, Cedar2 responds to how different generations of a family can live together. The design began from placing the main terrace with a view to the Zoroastrian Towers of Silence and the family living room at the building's heart. A sunken garden (godal-baghcheh) -- a traditional Yazd pattern -- provides light for the basement unit and a safe space for families and children.

06

Location: Haft-e Tir Square, Tehran · Built area: 178 m² · Site area: 354 m² · Photo: Deed Studio

Basement of House No. 100, Tehran

Zand Harirchi Architects — Zand Harirchi, Mohammadreza Nourmohammadi

The authentic fabric of Tehran is the city's most important identity document. Our concern was reaching a flexible, multifaceted structural model for restoring habitation in the city's underground level. This model allows updating the structure as needs change, while preserving cultural and historical identity and keeping the urban facade alive through renewed life in these buried levels.

Finalists — Apartment Buildings