Finalists — Individual Dwellings
Villa Souran, Shandiz, Razavi Khorasan
Villa Souran is a response to a commission for designing a leisure retreat, on a plot situated at the end of a villa township alongside agricultural lands. The site, with its distinctive shape, transitioned from a relatively narrow passage to a broad, open expanse. In the middle of this expansive area, a large pool existed that had previously been used for storing agricultural water. Rather than being removed, this defining element was embraced as the focal point and organizing principle of the entire design.
Arranging the villa's mass around the pool created a central courtyard with water at its heart — a cozy, tranquil courtyard yet visually and functionally connected to the surrounding garden. To maintain a human scale and create an intimate atmosphere, the overall height of the volumes was kept as low as possible. The expression of this duality in form and materials is the juxtaposition of low, heavy solid masses alongside tall volumes clad in light, delicate vertical louvers. The extension of the louvers' vertical lines into the courtyard paving and their metaphorical continuation into the pool water formed a symbolic connection from water to sky.
Behind the tall volumes, sloped roofs provided an ideal angle for installing solar panels and created hidden spaces for mechanical equipment — keeping the facades free from visual clutter. Certain elements, such as bar tables and exterior stairs, were fabricated with an object-like approach based on industrial design logic, standing in contrast to the main body and enhancing the clarity of the volumes.
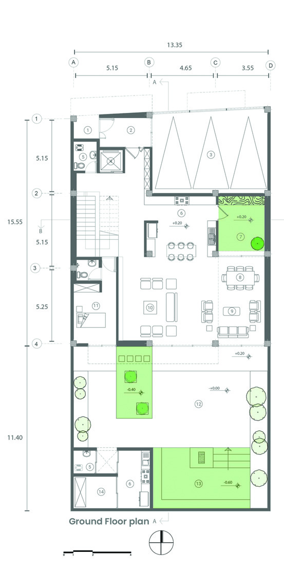
Ja'ar-e-Khaneh, Tonekabon
Most northern families have roots in highland summer villages where they have an old house called "jarkhaneh" (upper house). These houses were used for permanent or temporary residence during the warm seasons. Until a few years ago, the predominant fabric of villages was preserved with traditional architecture, but the construction of new recreational villas transformed the character of these areas. The newly built villas appeared foreign and intrusive to the villagers; for northern urbanites, they seemed imported and incongruous; and for non-northern migrants, they were reminiscent of repetitive Tehran patterns.
On this basis, the design idea took shape: a house that harmonizes with its surrounding fabric while providing modern living amenities. In the preliminary studies, key elements of vernacular architecture were identified. Some elements, such as the stone foundation and cob plaster, were used as the main facade materials. Spaces such as the "telarkhaneh" (middle terrace) were reinforced and relocated to the upper floor with better views. The house's structure combines a rigid cob core surrounded by wooden columns supporting the corrugated metal roof. Ultimately, the project is an experience of evolution — a house that has neither rejected the past nor ignored the present, but has embraced both side by side.
Sevilla, Chaboksar
This project is an attempt to redefine the spatial patterns of Gilan's vernacular architecture within a contemporary framework. The approach, rather than merely reproducing forms or solely using traditional materials, is grounded in reinterpreting the spatial logic and organizational principles of vernacular architecture. The core design idea centers on "porous and interstitial" spaces — spaces that transform the binary boundary of "inside/outside" into a continuous spectrum of spatial qualities. Porches, terraces, and semi-open surfaces serve as intermediary spaces, elevating the dwelling experience from a single-layered, enclosed state to a multi-layered, permeable one.
Like traditional Gilani houses, the villa is positioned as an independent element in the garden — a choice that not only references the vernacular dwelling pattern but also establishes a direct, unmediated relationship with nature and the surrounding landscape. The project endeavors to demonstrate that villa architecture in Gilan can transcend the mere reproduction of global modern images or superficial imitation of vernacular signs, and that through a critical, contemporary reading of vernacular spatial logic, a fresh approach to bridging context and contemporary architecture can be offered.
Life in Yard House, Najaf Abad
"Life in Yard": living in a borderland between inside and outside, with a ceiling made of sky. The city of Najaf Abad was once known for its extensive gardens, but the increase in building masses and the elimination of greenery has disrupted the balance between solid and void. The project's response is to redefine the courtyard as the beating heart of the home. The plan is organized around multiple courtyards with distinct functions: the main courtyard on the ground floor as a communal space, the central courtyard providing light, ventilation, and continuity between spaces, and private courtyards on the first floor bringing desirable light and views indoors.
The walls are clad in traditional handmade brick, which in addition to being compatible with the city's climate, creates a mental bond with the Iranian house. Here, the courtyard is not merely an empty or decorative space, but a space that establishes a connection between human and nature, allowing life to flow through every corner of the yard.
Inside House Residential Building, Delijan
Inside House: Between Pause and Flow. A single-unit residential building in a deteriorating fabric transitioning to apartment living. The main challenge was achieving privacy despite the overlooking of neighboring buildings. The design's starting point was the search for a quality that would invite life inward, to a safe stage, and free it from surrounding gazes.
The courtyard — once reduced to an isolated retreat — has been freed from isolation and, by connecting to the building's heart, expanded in both width and height. Terraces, staircases, and semi-open spaces at various levels have created suspended platforms that, by guiding the user between movement and pause, frame different views of the interior. The design of the envelope and calibrated openings has layered an outward orientation onto the project's introverted foundation, creating a flexible boundary between seclusion and openness. The result is a space that is neither enclosed and passive nor fully open — an architecture that, with changing light, seasons, and conditions, takes on a fresh face and engages in dialogue with its surroundings.
Life in Between, Kerman
"Life in Between" is an introverted, infill house — simple and aligned with the climate and historical past of Kerman. The design was formed by placing a courtyard at the building's heart, adjacent to the main circulation path — a space that softly and silently erases the boundary between inside and outside. This courtyard is not merely an empty space; it is an embrace that receives light and shadow, draws the scent and sound of wind into itself, and gradually, life begins to flow.
The central courtyard and the upper courtyard, in visual connection with each other, function as two planes of a quiet conversation between themselves, the earth, and the sky. Their semi-open walls allow the desired desert light and breeze to flow into the building while maintaining privacy. In the typology of desert houses, the courtyard typically occupies the building's center, but in this project, by shifting the courtyard toward the edge and redefining the peripheral walls, a contemporary interpretation of the central courtyard was achieved. At the urban scale, this architecture chooses the language of dignity and simplicity — a quiet expression that creates a distinct presence in today's chaotic fabric.








































