Contemporary Architecture

Finalists — Public Buildings

◆ ◆ ◆
01

Location: Ettehad Street, Tehran · Built area: 4,900 m² · Site area: 985 m² · Photo: Deed Studio

Plus Machine, Tehran

Reza Sayadian, Sara Kalantary

Located in Tehran's industrial fabric (Ettehad Street), the project departs from the area's conventional high-rise approach. Instead, a four-story research-industrial facility was built that respects the existing skyline. By defining a new spatial diagram based on human relationships and employing fluidity and transparency, the project creates a new typology of production space. Designed from section, the flow of life within the project weaves with the city's bustle. In a continuous, dynamic flow, movement transfers from inside to outside and vice versa, connecting street to roof. The space between factory and city becomes meaningful through human presence.

02

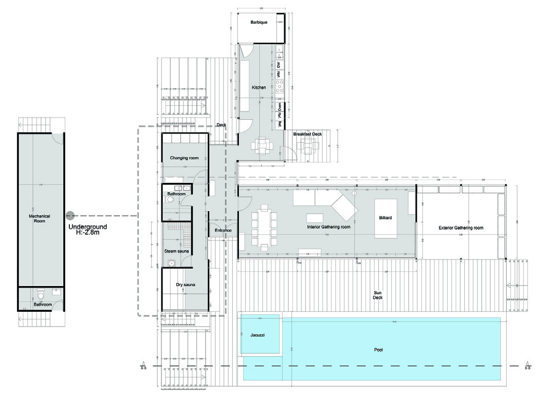
Location: Jaban, 100 km from Tehran · Total built area: 1,050 m² · Apple garden: 150,000 m² · Lake: 3,000 m² · Photo: Deed Studio

Darsib Resort, Damavand

Hamed Soltani

Darsib Resort consists of three 75-square-meter cabins and a 250-square-meter communal space around a water reservoir in a 15-hectare apple garden. Among the fruitful branches, on the edge of a lake that rebuilds the image of trees, we wanted to not-build. But no opportunity remains for staying without building. We thought: build as if we haven't built. A place to be, as if it hasn't been. Enter as if we're outside. Become light, find a way in suspension without blocking the path for ants and hedgehogs. Become green, like the trees.

03

Location: Andisheh, Phase 4, Tehran · Built area: 1,400 m² · Site area: 922.56 m² · Photo: Deed Studio

Baghe Koodak (Children's Garden), Tehran

Zahra Alinejad, Karim Nemati

School is a person's first real experience of social life. The project's challenge was transforming enclosed space into semi-open and open spaces, creating an interactive dynamic between school and city to foster belonging for children ages 3-9. Built on three levels, the design began with a central courtyard pattern common in historical schools. By overlapping functions into flexible, multi-functional spaces and separating others into island-like volumes along the urban edge, the building mass was subtracted and open space added. White brick on the facade bridges tradition and modernity, while interior color creates joyful childhood emotions.

04

Location: Laleh Street, Tabib Street, Isfahan · Built area: 25 m² · Site area: 250 m² · Photo: Ehsan Hajirasuliha

Bagh Ghushkhaneh, Isfahan

Se-Baer Studio — Mohsen Khazdooz, Adib Iravani

Mohammad, owner of an export carpet brand, purchased an abandoned house in Isfahan's Bagh Ghushkhaneh neighborhood — home to most carpet weavers. Instead of demolishing entirely, we proposed "a structure within a building": placing a light volume inside old walls to preserve them. The old stable was chosen for the new structure. Built in its most stripped-down state, old and new face each other with maximum rawness. The entrance was placed at a raised pass, leaving ground below as semi-open space. Old and new courtyards and rooftop were paved with mineral pumice for events, carpet unveilings, and dyeing.

05

Location: Dolat Street intersection, Tehran · Built area: 2,181.74 m² · Site area: 355 m² · Photo: Mohammad Hassan Ettefagh

Dolat Commercial-Office Building, Tehran

Zima Design Studio — Alireza Javanmard

A north-facing site visible from three sides required a special design language. Six office floors at 45% site coverage, a ground floor with lobby and commercial space, and four underground levels were built. The western facade's challenge was linked to the southern and eastern facades, avoiding an indifferent box. Tehran's southern cityscape and the green eastern vista of Mottefeghin Cemetery shaped the massing. Sliding floors over each other created solid and void spaces for inside-outside connections. Through excavating the body and creating a porous volume, light reaches the mass center, while terraces beyond the 45% footprint provide special outdoor connections.

Finalists — Public Buildings