Contemporary Architecture

Finalists — Renovation

◆ ◆ ◆
01

Location: Negin Fars Complex · Client: Emad Ansari Lari · Design: Hossein Rayan, Neda Alizadeh, Sahar Paknejad · Construction: Hossein Rayan · Supervision: Mohammad Varasteh · Electrical: Mohammad Alizadeh · Graphic: Sadaf Tehrani, Nuriyeh Yari · Photo: Varta Team · Built area: 35 m²

Maison No. 84, Shiraz

Roza Tabadar — Mohammad Varasteh

Facing a repetitive typology, we strove to create a bold space. Beyond selling product, adapting the boutique interior to movement through space, lingering longer, and becoming part of the space was our answer to breaking the predictable boutique scenario. Our goal was to create a dynamic place aligned with the nature of the core activity. Based on a disciplined spatial system, this arrangement allows the visitor to pass through a carefully designed sequence of events and pause.

The central red box responds to the visitor's needs from every angle. Everything is gathered in one multifunctional box that houses all activities and micro-spaces, attracting and beckoning the visitor. By maximally eliminating the usual environmental noise found in stores, the aim was to attract the visitor to the path and encourage spatial exploration with minimal material. The entire end surface was covered with mirrors, creating depth, dimension, and extension — a room whose end is unknown, stretching the path and increasing visibility both inside and outside the store.

Maison 84 transcends its role as a store and takes visitors on an immersive, participatory journey — a performative interaction between product, space, and user. This architectural intervention redefines the boutique typology as a dynamic and meaningful spatial narrative, resonating both with users and within the broader architectural discourse.

02

Location: Azadegan Street, Shiraz Innovation Factory · Client: Ali Roldar · Construction: Ali Basiri · Supervision: DO/ON Studio · Graphic: Sahra Shabani · Photo: Arash Akhtaran · Diagram: Nikan Hajari · Built area: 56 m²

More Than a Cube, Shiraz

DO/ON Studio — Leila Jamshidnejad, Ali Mohagheghzadeh

Inside an abandoned industrial factory now converted into an innovation center, this cafe design sought to respond to the young, creative generation's need for a shared, fluid, and inspiring space. Our approach was a critical reading of the existing context. Workspaces allocated to young teams were designed in small dimensions due to economic considerations, turning the wall into a limiting element. In response, we turned to the concept of "wall-lessness" and proposed a fully glazed cubic structure as an antithesis — a physical metaphor for "thinking outside the box."

In choosing materials and geometry, we emphasized simplicity, clarity, and function: white tiles with an industrial texture, polished concrete flooring, and an illuminated volume that strengthens spatial legibility along the vertical axis. The luminous cube appears detached from the ceiling and surrounding walls, and by its reflection on the polished floor, seems separated from the ground — an evocative, suspended volume in space. The cafe function at the heart of the cube is designed like a performance stage visible from every angle, where the barista's work process becomes a kind of daily performance.

We see this project as a response to the new generation's growing need for flexible, unpretentious yet meaningful spaces, where architecture plays the role of facilitator, not dominator.

03

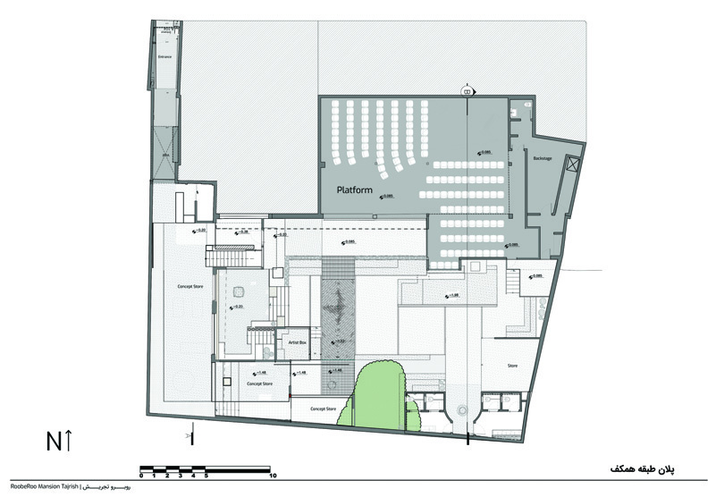
Location: Valiasr Street, near Tajrish Square, No. 3163 · Client: Houman Memarpanahi, Saeed Naderi · Design: Sanaz Khodadad, Mehran Arefian, Alireza Khoshro · Construction: H. Memarpanahi, S. Naderi, Babak Abbassi · Graphic: Amir Moghtada · Photo: Sanaz Khodadad · Built area: 650 m² (2 floors) · Area: 725 m²

Rooberoo Mansion, Tehran

Mehrsan Design Studio — Sanaz Khodadad, Mehran Arefian

This mansion, in the heart of Tajrish, is more than a building — it is an extension of the living path of a vibrant cultural institution. A path that is neither linear nor monotonous; a collection of parallel, intersecting, and even unpredictable routes that, like the veins of a living organism, circulate life through its body. Paths are not created merely for passing through and arriving; they are themselves destinations — arenas for lingering, watching, socializing, and experiencing.

Rooberoo Mansion functions like a small plaza within the city — a place where spaces look both inward and connect outward. Paths flowing through its body and viewpoints opening to the outside strive to draw the vibrant urban life of Tajrish Square and its surroundings into the complex. The result is an urban solution that, without compelling people to consume a specific function, invites them to a collective and public experience — a multilayered network that turns moments into discoveries, where choosing and wandering through paths becomes part of the feeling of being present in the space.

04

Location: Intersection of Khark Street and Neauphle-le-Chateau Street, No. 2 · Client: Tohid Kermajani, Iman Fattahi · Design: Parniya Mallaki, Mohamadreza Pakdast · Supervision: Nava Kholoosi · Construction: Vahid Vaziri · Structure: Farid Bahrami · Mechanical: Amir Hashemi · Electrical: Reza Ganji · Graphic: Parniya Mallaki, Shaghayegh Naji · Photo: Arash Pasha · Built area: 291.50 m² · Area: 983.65 m²

Mansha Mansion, Tehran

Ashrafi & Zad Design — Raha Ashrafi, Marziah Zad

A residential building dating from 1940 (1319 SH) that was leased for 5 years in late 1402 SH. The short duration of use added challenges of construction speed, cost savings, and temporary structure to a renovation project. The temporary nature became an opportunity for employing reversible materials and techniques. Micro-interventions in sharp contrast with the existing context became one of the project's chosen approaches — easily distinguishable in reading the site. Furthermore, subtracting is far less costly than building, and while creating new spatial quality, it puts the building's valuable past on display.

Flowerpots, a pool, and a tree are reminiscent of Iranian house courtyards. In Mansha Mansion's design, these elements are borrowed from the past and reused with a different translation in a modern structure. Another shaping strategy is boundary-setting: maintaining distance between new constructions and the existing building — a form of homage to the past. In the courtyard, a new floor is set above the existing ground level, distanced from the courtyard walls. This added surface is repeated on the facade as well, echoing the strategy of "distance means respect."

05

Location: Shafei Street · Client: Saeed Bagherzadeh · Design: Hasti Bozorgzadeh, Saba Asiaban, Amir Jabari · Construction: Saeed Bagherzadeh · Supervision: Chenin Studio · Photo: Arash Akhtaran · Area: 95 m²

Jambo, Kangan Port

Studio Chenin — Mohamad Moazeni

Part of the construction had already been completed and the space was being used as storage, abandoned at the ceramic tiling stage. The rental nature of the space dictated economy and design flexibility. Our main strategy was converting kitchen cabinets — a spatial necessity — into a central addition in the middle of the space. By distancing this element from the surrounding walls, it creates diverse spatial experiences and generates capacity for different operational scenarios.

Stripping: by removing the ceramic layer from wall surfaces, the underlying mortar — bearing the imprints of removed tiles — is revealed as the final texture. These intensely accidental, unplanned surfaces, by not adding new materials, maximize cost reduction and increase construction speed while providing a new, unrepeatable textural experience. Adding: the Jambo cabinet takes the form of heavy masses that have slid over one another, creating diverse spaces within and around themselves, divided into three height sections based on workspace standards while maintaining the unusual aesthetic of this dark, heavy element.

Finalists — Renovation