Local and Vernacular Architecture

Palaces and Buildings in the Hinterland of the Persian Sea, Dashtestan

Ameneh Bakhtiar·Photos: Hamid Akbari, Fateme Rezaei·Bushehr Special Issue
Palaces and Buildings in the Hinterland of the Persian Sea, Dashtestan

In the hinterland of the Persian Sea, in the Dashtestan region, structures such as column bases and stone piers have survived that, in terms of construction, technical characteristics, and style, resemble Achaemenid royal buildings. They were built according to a similar architectural model — a central columned hall, side columned porticos, stone column bases, and a particular method of site selection. Based on available evidence and documentation, these palaces date to the earliest decades of Achaemenid rule.

Dashtestan lies on the banks of the Dalaki River, slightly above the present-day port of Bushehr. Given its importance as a communication hub, it served as a ceremonial center — a starting point for maritime voyages to other Achaemenid territories such as India, Egypt, and the southern coasts. The construction of palaces and government buildings in this region reflected the kings' attention to the Persian Gulf maritime route as a vast and important waterway within the empire. The three palaces of this region are named Charkhab, Sang Siah (known locally as Nazar Agha Palace), and Bordak Siah.

Charkhab Palace

Charkhab Palace, serving as a coastal summer palace, is situated west of Borazjan, thirty kilometers from the sea, amid palm groves. To its east runs the Ardu seasonal stream, which provides access to underground freshwater resources and a suitable bed for agriculture and horticulture.

The architecture of the building follows the model of Cyrus's private palace at Pasargadae, featuring a rectangular central hall oriented north-south with two rows of six stone columns and three entrances on the north, south, and east sides. Opposite the eastern entrance stood a columned portico roofed with crescent-shaped beams. The building materials were stone, gypsum, sarooj, and wood for doors and windows. Among the principal architectural features are the column bases, which still survive: at the bottom, black stone, and atop it, polished, carved cream-colored stones of the same dimensions. A similar combination has been observed at Pasargadae, and on this basis Boardman and James Cook date the construction of Charkhab Palace to the era of Cyrus the Great.

Close-up of Charkhab Palace column bases showing stepped black and cream stone construction with palm trees in the background
Charkhab Palace — stepped column bases of black and cream stone, echoing those at Pasargadae
Sang Siah Palace

Sang Siah Palace, north of the Dalaki River, had a central columned hall with four porticos on its four sides. Four stone doorways enclosed the central hall from all four sides. The southern, western, and northern porticos each had two rows of eight columns, while the eastern portico had two rows of twenty-two columns. The capitals were sculpted with two back-to-back eagles and two back-to-back lions, and the bases were square and stepped, made of two stones — black and white.

Architectural floor plan of Sang Siah Palace showing the central columned hall and four surrounding porticos
Floor plan of Sang Siah Palace
Excavated ruins of Sang Siah Palace showing stone foundations, column bases, and wall remnants
Sang Siah Palace — excavated foundations and column bases
Bordak Siah Palace

Bordak Siah Palace likewise had a main hall with columns similar to those of Cyrus's palace and Charkhab, arranged in four rows of four. The main entrance, of larger scale, faced a portico to the south, with other stone entrances on the eastern, northern, and western sides. The southern portico had columns half the size of the main hall. Today, a large stone pier survives from the portico's doorway.

Architectural floor plan of Bordak Siah Palace showing the columned hall and entrances
Floor plan of Bordak Siah Palace
Surviving column bases of Bordak Siah Palace under a protective shelter
Bordak Siah Palace — surviving column bases (Photo: Fateme Rezaei)
◆ ◆ ◆
Gor Dokhtar

Another Achaemenid monument in the southern Pars region is the Gor Dokhtar tomb, located in the Buzpar area of Dashtestan, behind the eastern heights of Borazjan. It is a rectangular tomb standing 4.45 meters tall, built in an eclectic manner based on an Elamite architectural model with an ossuary — a combination of Achaemenid and Elamite architecture that has bestowed special significance upon this tomb.

Cream-colored stones of various dimensions were used to build the tomb. A stone platform sits at the base, upon which three tiers of steps rise, then the tomb chamber with a doorway facing northwest and a crescent-shaped ridge. The thick stone walls of the chamber, like other Achaemenid structures, are joined with hidden metal clamps in dry-stone fashion.

Front view of the Gor Dokhtar tomb — a rectangular stone structure with crescent-shaped roof, stepped base, entrance doorway, and iron fence
Gor Dokhtar — the Achaemenid tomb with its distinctive crescent-shaped ridge and stepped stone base

This tomb was built after the acceptance of the Zoroastrian faith, by the order of Cyrus I: the upper portion for his wife, who was Elamite, and the lower portion for himself. The upper crescent-shaped stone section is hollow, which — beyond its aesthetic qualities of form — is also important structurally for reducing the load. This section is made from a single elongated stone on the northwest and southeast sides, covered on both ends by trapezoidal stones. The lower section, belonging to Cyrus I, is rectangular and serves as an ossuary.

Another example of a Gor Dokhtar can be seen at Pasargadae. The precise chronological precedence of these two monuments is unclear, but both were built on a similar model. By comparison, the tomb of Cyrus at Pasargadae is of larger scale, with six tiers of steps and a gabled roof. Given that this tomb is of a more rudimentary, simpler form without carved detailing, and that no tomb in this style was built in later periods, many historians consider the construction of this tomb to predate the tomb of Cyrus the Great.

Gor Dokhtar tomb in a wider landscape view, with the Zagros mountain range visible behind
Gor Dokhtar set against the Zagros foothills
Close-up of the Gor Dokhtar tomb showing the massive stone blocks, entrance opening, and crescent roof detail
Close-up of the tomb's monolithic stone construction
◆ ◆ ◆
Ardashir Pavilion

In the elevated, mountainous Aram area of Dashtestan, atop a green hill, stands a pavilion of rubble stone with sarooj mortar. What remains of the structure is a rectangle oriented from southeast to northwest. Throughout the building runs a long, roofed corridor six meters in height, which terminates at both ends in two porticos with spaces featuring barrel vaults set along them. Based on the dimensions and proportions of the spaces and openings, it is surmised that the main iwan and entrance were on the northeastern side.

The iwan in this period was considered the defining and dominant element of pavilion architecture, placed atop a platform with a favorable view, also serving as a belvedere. Combined with a domed chamber behind it that functioned as a public reception space, this model continued in palace architecture through the Qajar era.

Ardashir Pavilion ruins on a green hilltop showing three large barrel-vaulted arches with mountains behind
Ardashir Pavilion — the Sasanian ruins with their characteristic barrel vaults, atop a green hilltop in the Aram highlands

Based on the surviving substructures, Ardashir Pavilion was cross-shaped, covered by large semicircular barrel vaults — a hallmark of Sasanian architecture. Parts of these vaults still stand, skillfully erected on the stone piers of the lower structure. At the top of the pavilion, a remnant of a stone column survives that was used for lighting fires, as a watchtower, or for signaling.

In this building, as in other Sasanian palaces and based on the evidence, symmetry was a fundamental design principle. The architecture was arranged along axes of symmetry on both sides. This pairing and mirroring in the architecture of temples and reception palaces of this era served to express grandeur, beauty, and magnificence.

Closer view of Ardashir Pavilion showing barrel-vaulted arches and entrance with scaffolding supports
The barrel vaults and entrance arch with conservation supports
Pointed arch entrance of Ardashir Pavilion rising above the green hillside
The pointed arch entrance rising above the hillside
◆ ◆ ◆
Moshir Bridge

The Moshir or Dalaki Bridge, serving as a connecting link over the Dalaki River, was built with six arches on stone piers, its vaults braced with timber.

Moshir Bridge spanning the Dalaki River with six stone arches and turquoise water flowing beneath, red mountains behind
Moshir Bridge — six stone arches spanning the Dalaki River
View along the Dalaki River toward the Moshir Bridge, with layered sedimentary rock formations in the foreground
The Dalaki River winding toward the Moshir Bridge through layered rock formations
Chehel Khaneh & Unexplored Sites

The pattern of distribution of historical sites and palaces in the Dashtestan region, with Borazjan as the ceremonial and political center, indicates a continuous process of settlement from the Achaemenid to the Sasanian period. Moreover, in subsequent periods as well, due to favorable climate and political geography and the importance of its connectivity within the continuous road network, it experienced considerable prosperity. Its position on the route connecting the Persian Sea and the port of Bushehr led to the construction of a caravanserai and the Moshir Bridge by the architect Haj Mohammad Rahim Shirazi during the Qajar period.

Rock-cut cave dwellings carved into a cliff face — the Chehel Khaneh (Forty Houses) of Dashtestan
Chehel Khaneh — rock-cut cave dwellings in the cliffs
Aerial view of unexplored ancient mounds in the Dashtestan plain with power transmission lines in the background
Unexplored archaeological mounds of Dashtestan
◆ ◆ ◆
Borazjan Caravanserai

A towered and battlemented building with a facade of stone and sarooj, situated north of Bushehr in the vast plain of Borazjan. This stopping place — called the fortress or caravanserai of Borazjan — overlooks the road formerly known as the Royal Road, which ran from Shiraz to the Persian Gulf. The building functioned as a rest house or inn for travelers and merchants. Like caravanserais in the villages of Darazin in Kerman, this building was also used as a prison; as the designation "fortress" suggests, it served a military function for a time as well.

The grand entrance facade of the Borazjan Caravanserai with battlements, pointed arch portal, and arched niches
Borazjan Caravanserai — the grand entrance facade with its ornate portal and battlements

The architecture of the caravanserai is systematic, governed by precise design rules and principles. The building is arranged in a right-angled geometry with a rectangular plan that, for fortification and greater security, is enclosed on three sides by tall, thick perimeter walls. Only on the southwest side does it have a grand entrance with a portal that protrudes beyond and rises above the perimeter walls, effectively enriching the facade.

Watchtowers stand slightly higher than the walls at the four corners of the rectangle. A covered corridor connects the entrance to the central courtyard, and around the courtyard, arched niches in a repeating, harmonious pattern house small chambers behind them for storing goods and lodging travelers. The chambers at the center, intended for hosting distinguished travelers, are more ornate and grand, known as the shah-neshin. Behind the chambers lies the camel-pen, accessible to the courtyard through corridors that interrupt the rhythm of the chambers.

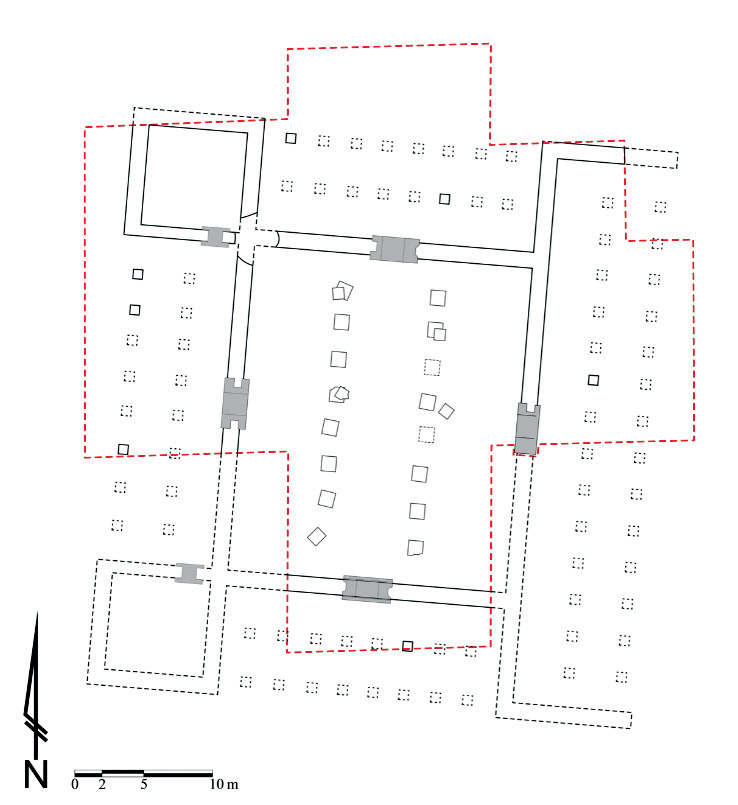
Architectural floor plan and cross-sections (A-A and B-B) of the Borazjan Caravanserai showing the rectangular layout with central courtyard, chambers, iwans, and corner towers
Floor plan and cross-sections of the Borazjan Caravanserai
Interior courtyard of the Borazjan Caravanserai showing iwans, arcaded chambers, and stone facade
The central courtyard with iwans and arcaded chambers

The Borazjan Caravanserai, in its overall plan, resembles Sasanian-era palaces as a four-iwan building. The iwans are situated at the center of each side, aesthetically dividing the courtyard facades and creating a symmetrical pattern. This quality — clarity, symmetry, and scale — is a defining characteristic of Safavid caravanserais, which continued beyond the Qajar period to the present day in the design of such buildings in Iran and Iraq.

The Borazjan Caravanserai was built during the Qajar period by order of Haj Mirza Abolhasan Khan Moshir al-Molk, with an area of approximately 7,000 square meters and a built-up area of 4,200 square meters, by the architect Haj Mohammad Rahim Shirazi. The facade, similar to Seljuk caravanserais, uses dressed cream-colored stone.

Interior vaulted corridor with receding pointed arches leading deep into the caravanserai
Vaulted corridor with receding pointed arches
Barrel-vaulted passage framing the courtyard facade beyond
A passage framing the courtyard facade
Courtyard detail showing two-story arcaded facade, corner tower, and a stone millstone in the foreground
Courtyard detail with arcaded facade and stone millstone
The pointed arch entrance portal of the Borazjan Caravanserai with dressed stone facade and a bicycle leaning against the wall
The dressed-stone entrance portal
Full exterior view of the Borazjan Caravanserai with corner towers, battlements, arched facade, trees, and reflecting pool in front
The Borazjan Caravanserai — full exterior view with corner towers, battlements, and reflecting pool

1. Buzpar — also Bespar or Posht-Par — is in the Aram district of Dashtestan and means "behind the mountain." This area is situated among the mountains and has very favorable climatic conditions for cultivation and agriculture.

2. Ostodan — ossuary.

3. The interior of the Firuzabad Palace and the Taq-e Kasra also have a two-iwan layout.

4. Among the most important characteristics of Sasanian architecture: use of plans with iwans, domed chambers, and courtyards; use of locally sourced materials (stone, mudbrick, clay, gypsum, and wood); covering of structures with barrel and turnip-shaped vaults and wooden beams.

5. Throughout the centuries, the large scale of buildings and courtyards has been a recognizable characteristic of Iranian caravanserais.

6. Sabat — a structure built for resting. Its first element "sa" means comfort, and the suffix "bat" means settlement. Robat refers exclusively to roadside structures, particularly outside cities, meaning a place for stopping and resting.

Palaces and Buildings in the Hinterland of the Persian Sea, Dashtestan